GST-LD-N8401(Ex)總線隔離式安全柵
文章來源:www.feimu-hr.com作者:海灣消防公司人氣:2024日期:2020-04-04 13:07:07
一、海灣GST-LD-N8401(Ex)總線隔離式安全柵產品概述
GST-LD-N8401(Ex)總線隔離式安全柵(以下簡稱安全柵)采用隔離式安全柵設計方案,用于連接需接入普通總線的本安編碼產品,組成本質安全型防爆系統。安全柵應安裝在安全區域。
二、海灣GST-LD-N8401(Ex)總線隔離式安全柵產品特點
1.本安側短路不影響非本安側;
2.GST-LD-N8401(Ex)完全用硬件實現信號轉換,信號延遲低。
三、海灣GST-LD-N8401(Ex)總線隔離式安全柵技術參數
| 型號 | GST-LD-N8401(Ex) |
| 工作電壓 |
信號總線電壓:24V; 允許范圍:16V~28V 電源總線電壓:DC24V; 允許范圍:DC20V~DC28V |
| 工作電流 |
總線:電流<2.5mA DC24V:電流<150mA |
| 設備容量 | 最多可配接32只本安編碼設備 |
| 本安參數 | Um: 250V Uo:28V Io:115mA Po:0.8W Co:0.083μF Lo:4mH |
| 使用環境 |
溫度: -10℃~+55℃ 相對濕度≤95%,不凝露 |
| 安全柵殼體材料 | PA66 |
| 安全柵重量 | 約0.44kg |
| 安全柵防護等級 | IP30 |
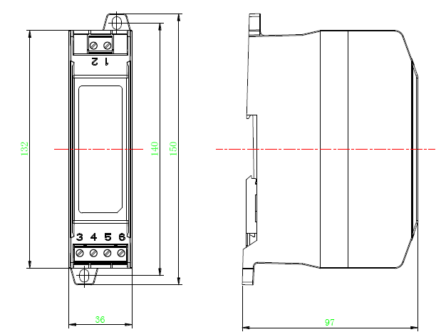
| 安全柵安裝孔距 | 140mm |
| 安全柵外形尺寸 | 150mm×97mm×36mm |
四、海灣GST-LD-N8401(Ex)總線隔離式安全柵結構特征與工作原理
1.安全柵的外形示意圖如圖所示。
外形示意圖
2.工作原理
安全柵通過隔離和限能2種方式確保本安側的安全。電源部分用變壓器隔離,信號部分用光耦隔離,本安側輸出端口用穩壓二極管限壓、電阻限流。
五、海灣GST-LD-N8401(Ex)總線隔離式安全柵安裝與接線
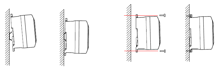
1.安裝:安全柵可以直接安裝于寬度為35mm的標準DIN導軌,如圖所示。在不具備導軌安裝條件時,可以通過上下兩個安裝孔,使用M4螺釘或ST4.2自攻螺釘(可選配塑料膨脹管)進行安裝,如圖所示。

左圖導軌安裝示意圖 右圖普通安裝示意圖
2.接線
安全柵端口通過插拔式端子(包括端子頭和端子座)同其他設備連接,將電纜線安裝在端子頭上后,端子頭正確插在端子座上確定穩固連接即可。
3.端子說明
接線端子如下圖所示。

接線端子
Z1、Z2:普通總線輸入,無極性
D1、D2:DC24V,無極性
ZO+、ZO-:本安總線輸出

注意:每個安全柵最多可配接32只本安編碼設備;
安全柵應安裝在安全區域,本安側和非本安側接線應分開,并保持一定距離(至少為50mm)。
4.布線要求
信號總線Z1、Z2采用阻燃RVS型雙絞線,截面積≥1.0mm2;電源線D1、D2采用阻燃BV線,截面積≥1.5mm2。安全柵至本安編碼設備應選用截面積≥1.0mm2的本安電纜,且電纜間分布電容不得大于0.083μF,分布電感不得大于4.0mH。
以上內容是智淼君安(江蘇)消防工程技術有限公司所創,剽竊一律刪除。http://www.feimu-hr.com/
海灣安全技術有限公司主營:海灣消防報警系統銷售報價,消防工程改造,氣體滅火、電氣火災安裝,售后安裝維修,檢測,調試,海灣消防網址:http://www.feimu-hr.com/;海灣服務熱線:18910580194
此文關鍵字:
GST-LD-N8401(Ex)總線隔離式安全柵
推薦文章
- 【圖解】海灣主機故障現象集合及維修處理經驗分享
- 海灣吸氣式感煙探測器使用場景
- 自動滴水閥漏水處理方法|預作用報警閥自動滴水閥故障
- 語音型聲光能代替消防應急廣播?
- 海灣消防電源模塊故障有哪些
- 海灣消防主機一條回路全部報故障是什么情況
- 海灣消防火災報警控制器按手動鍵盤無反應是哪些情況
- 海灣探測器模塊故障如何進行隔離處理?
- 海灣的總線隔離安全柵可以帶多少個防爆設備?最多可以帶多少個防爆聲光?
- 海灣消防防爆消火栓按鈕接線部位不防爆的問題分析與對策






蘇公網安備32058102002150號